• About Us
  • Residential
  • Commercial
  • Retirement Living
  • Contact Us
  • About Us
  • Residential
  • Commercial
  • Retirement Living
  • Contact Us

SAHT Suburban Adelaide

Location
Adelaide
Project Status
Documentation Completed 2025

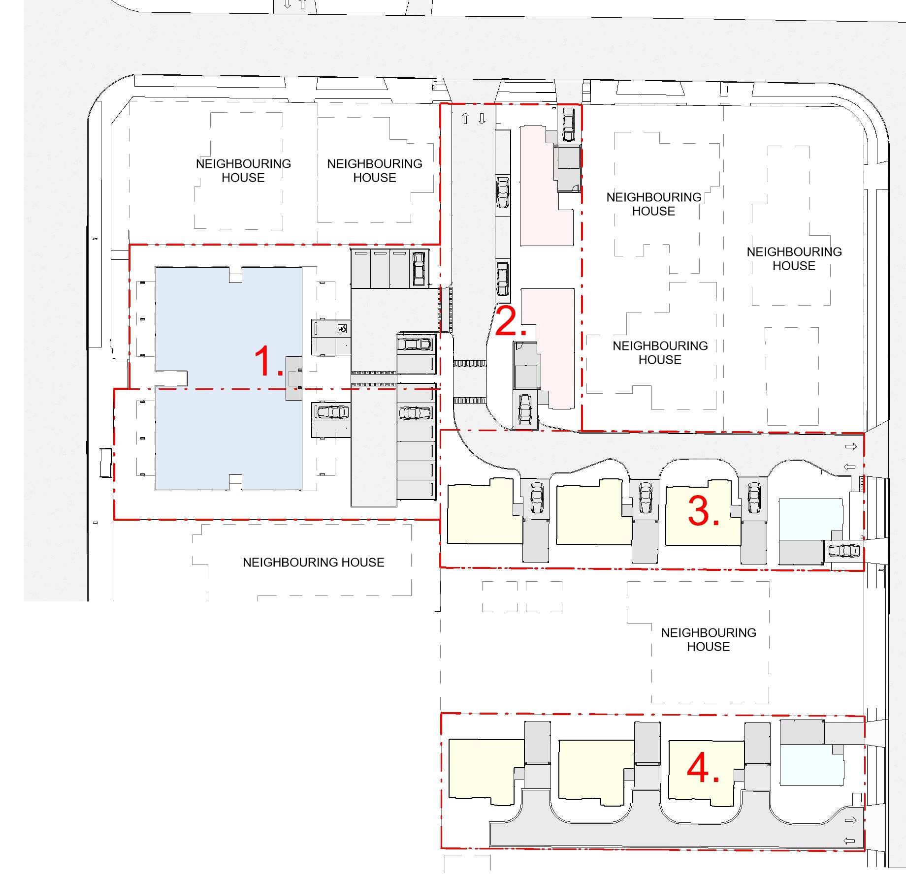
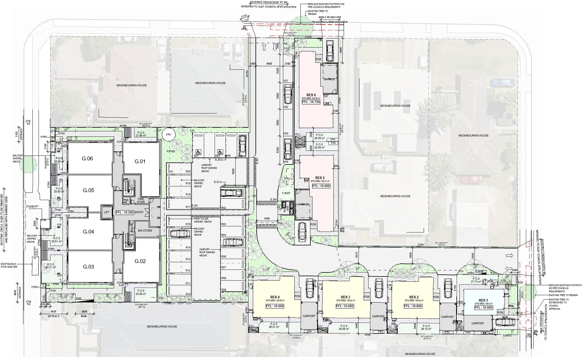
With an urgent need to increase housing supply the SAHT entrusted Cube to find ways to maximise the yield of dwellings on a group of suburban allotments that previously accommodated 5 dwellings. With a combination of single storey houses, townhouses, multi-storey apartments and NDIC units Cube produced an outcome of 32 two-bedroom homes.


Other public housing projects include Hanson Road, Felixstow Apartments and Preston Development

Quick Links

  • Home
  • About
  • Residential
  • Commercial
  • Retirement Living
  • Contact Us

Contact Us

  • 458 Morphett Street, Adelaide SA 5000

  • cube@cubearchitects.com.au

  • T: (08) 8379 5222
    M: 0412 619 420

  • @cube_architects_adelaide

Downloads

  • The Architectural Process
  • Understanding Project Budgets
  • Retirement Villages Brochure
  • Quality Policy Statement
  • Safety Policy Statement
© Copyright 2026. All Right Reserved.